Ang GW13 Series Transformer Neutral Point Gap Grounding Protection Device na ginawa ni Lugao ay idinisenyo upang maprotektahan ang pagkakabukod ng transpormer na neutral na punto mula sa overvoltage ng kidlat, paglipat ng overvoltage at dalas ng kuryente (lumilipas) overvoltage. Ang Lugao ay may propesyonal na kagamitan sa paggawa at mayaman na karanasan sa pag -export, at ang imbentaryo na gaganapin ay maaaring maihatid nang mabilis.
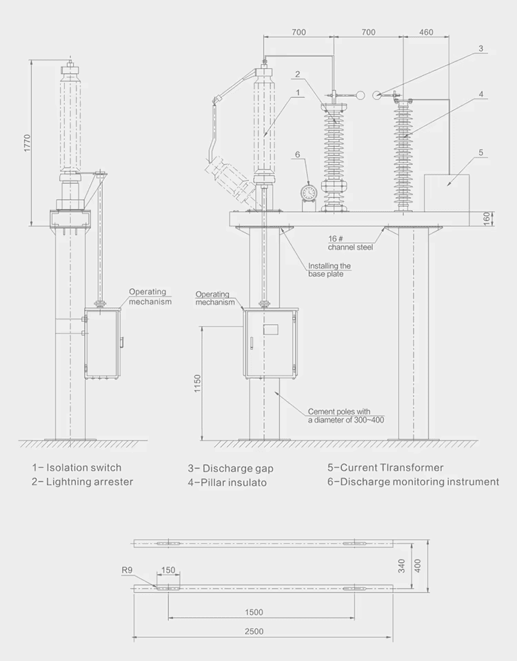
Ang serye ng GW13 serye ng Lugao ay ang mga protektor ng Overvolt ng Overvolt ng Overvolt ay pangunahing ginagamit sa mga neutral point circuit ng 110kV at 220kV power transformer. Pinoprotektahan nila ang neutral point pagkakabukod ng transpormer mula sa pagkasira ng overvoltage at paganahin ang transpormer na lumipat sa pagitan ng mga grounded at unrounded neutral point operation mode. Kapag ang sabay -sabay na proteksyon laban sa kidlat, dalas ng kuryente, at paglipat ng mga overvolt ay kinakailangan, ang isang puwang at arrester ay maaaring konektado nang magkatulad para sa proteksyon. Ang GW13 Series Neutral Point Overvoltage Protector ay isang kumpletong hanay na nagsasama ng isang disconnector, zinc oxide arrester, paglabas ng agwat, at kasalukuyang transpormer. Nagtatampok ito ng mataas na kapasidad ng thermal at mahusay na proteksyon, nababaluktot na mga pagsasaayos, at kadalian ng paggamit. Ang isang purong disenyo ng agwat o isang kumbinasyon ng disconnector at paglabas ng agwat ay maaaring mapili upang matugunan ang mga pangangailangan ng gumagamit.
GW13 Protection Device Technical Specifications
| lt |
Unit |
Argumento |
||
| Modelo ng produkto |
|
Lugao-GW13-110 |
Lugao-GW13-220 |
|
| Na -rate na boltahe |
KV |
110 | 220 | |
| Transformer neutral na may boltahe |
Buong kidlat at gupitin ang boltahe (rurok) |
KV |
250 | 400 |
| 1min frequency ng kapangyarihan (epektibong halaga) |
KV |
95 | 200 | |
| Neutral na paghihiwalay ng switch |
Na -rate na kasalukuyang |
A | 630 | 630 |
| Mekanismo ng pagpapatakbo |
|
Cs14g (manu -manong) o cj2 (electric) |
||
| Zinc Oxide Arrester |
Na -rate na boltahe (RMS) |
KV |
72 | 144 |
| Patuloy na boltahe ng operating |
KV |
58 | 116 | |
| DC 1MA sanggunian boltahe |
KV |
103 | 205 | |
| Residual boltahe ng kidlat na salpok kasalukuyang |
KV |
186 | 320 | |
| Naglalabas ng agwat |
Saklaw ng distansya ng elektrod ng agwat |
mm | 90-150 | 220-320 |
| Saklaw ng dalas ng dalas ng dalas |
KV |
50-83 | 100-166 | |
| 1.2/50US Impulse na naglalabas ng boltahe |
KV |
120-190 | 250-320 | |
| Kasalukuyang transpormer |
I -type |
|
Ang epoxy resin ay ibinuhos na ganap na nakapaloob na uri ng haligi 10kv |
|
| Ratio ng pagbabagong -anyo |
|
100/5,200/5,300/5.40015.50015.600/5 |
||
